Accueil / Terrains / Castel Verde

Castel Verde

terrains à La Londes Les Maures 83250

Accueil / Terrains / Castel Verde

Castel Verde

terrains à La Londes Les Maures 83250

TERRAINS À BATIR :

Livraison: 2ème semestre 2019

La Londes Les Maures

TERRAINS À BATIR La Londes Les Maures


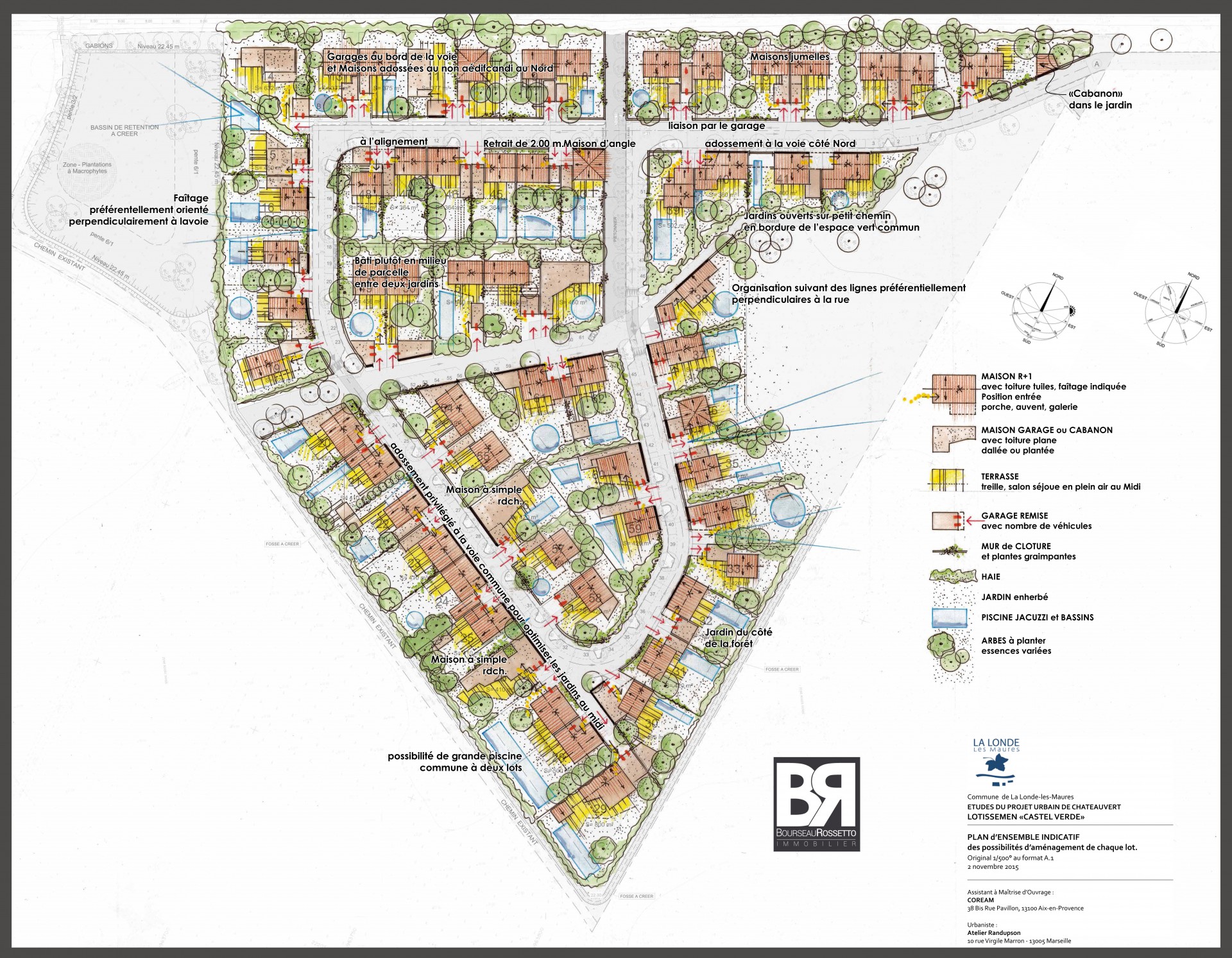
Au cœur de la Londes-Les-Maures, petite station balnéaire réputée, le lotissement Castel Verde vous propose 62 terrains à bâtir libres constructeurs de 350 m² à 780 m². Avec de belles surfaces et des expositions privilégiées, les terrains viabilisés de Castel Verde offrent l’opportunité de construire de vastes maisons neuves avec piscines. Situés à la Londe-Les-Maures, les terrains à bâtir sont à proximité des plages et des commodités. La Londe est connue pour sa douceur de vivre, ses vignobles et ses magnifiques plages.

Brochure

Contact

04 94 00 90 00

Liste des terrains à vendre


Localisation du terrains à batir


Adresse : Londe-Les-Maures

Ville : La Londes Les Maures

Code postal : 83250